Video
Property details
Campofelice di Roccella, Via Imera CLICK AND VIEW THE PROPERTY ON THE MAP
We offer for sale a beautiful 199 sqm property located in Campofelice di Roccella. The home is spread over three levels and has been completely renovated with great care and attention to detail, featuring unique characteristics and high-quality finishes. Thanks to its refined features, premium materials and breathtaking panoramic view, this property represents an excellent opportunity both as a primary residence and as an investment.
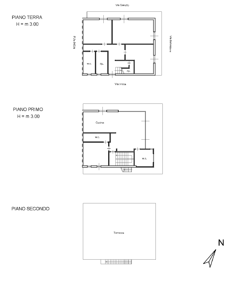
The property has an independent entrance on the raised ground floor, which opens onto a functional and well-designed living space. This level includes two bright bedrooms, two modern bathrooms, a kitchen and a storage room. A distinctive element is the wrap-around balcony that extends along the entire perimeter of the property, offering a wonderful sea view and excellent natural exposure. The window frames on this level are made of wood.
The heating and air-conditioning system serves all rooms, ensuring comfortable indoor temperatures throughout the year. The quality of the materials, comfort and sea view make this property an ideal solution for anyone seeking a functional home with excellent exposure.
An internal staircase leads to the second level, which consists of a bright double living room with an adjoining masonry kitchen. The folding window frames with double glazing ensure excellent thermal and acoustic insulation.
An elegant bathroom featuring a chromotherapy shower and a rotating French door opening onto the terrace makes this space unique. A second bathroom with a motorized roof window, a master bedroom and a charming terrace with sea view complete this floor, offering refined and comfortable environments.
The third level features a spacious 102 sqm terrace, already prepared for the installation of a hot tub—perfect for moments of relaxation while enjoying one of the most impressive panoramic views in the area.
The property is equipped with two boilers, one for each level, an underfloor heating system on the second level and a heat pump system providing both heating and summer cooling, ensuring full comfort in every season.
It also includes a video intercom system and methane gas connection, offering maximum convenience and safety.
Ideal for those looking for a high-quality, versatile and easily adaptable solution, this property is perfectly suited as an investment, a bed & breakfast or a family residence, thanks to its comfort, views and strategic location.
An unmissable opportunity to live or invest in one of the most charming areas of the region.
Amenities and features
File Attachments
We can help you find the property of your dreams.
Get in touch with us, whether you are buying or selling.
Contact Us